川越の家 TERRA
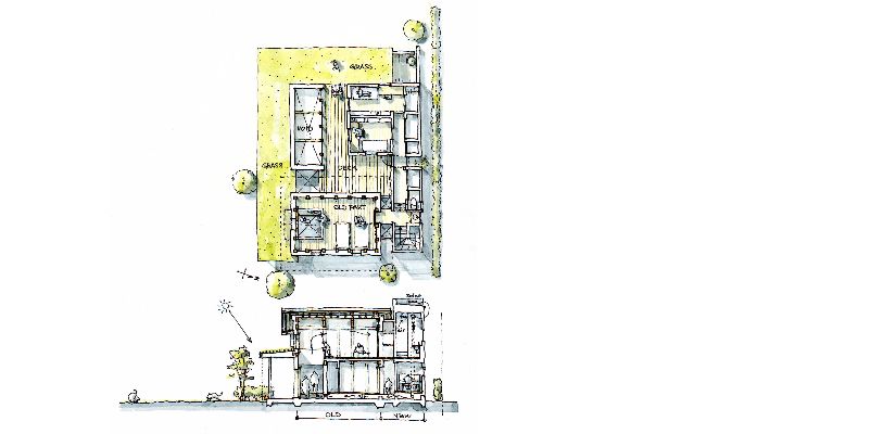
江戸時代から代々続く専業農家の住宅です。今まで住んでいた離れがお子さんの成長に伴い手狭になったため、新たな住空間を求められました。それにあたり、母屋に1人でお住まいのお母様の様子が伺えるようにしたいとの要望でしたが、母屋の隣には倉があり、そのためにはそれを取壊して構わないとのお話でした。しかし、なんとかこれを壊さずに要望を満たすことのできる農業生活に適した空間を創ることはできないものか、可能性を探る事が課題となりました。
そこで考えたのが、築100年の既存倉を基点に土のボリュームを3つ新築し、その隙間に住まう様な住宅でした。倉の母屋側には小窓を穿ち2階を寝室として設えました。新築した各ボリュームは下屋のラインでつなぎ合わせ、そこに生まれる様々な隙間が、諸用途を満たしながら外部との多様な距離感を形成する空間となっています。
DATA:
所 在 地 :埼玉県川越市
用 途:専用住宅
施 工:(建築)(株)高橋工務店
(電気・空調)(株)佐々木電気
(衛生・給排水)(株)オチアイ
延床面積:134.88㎡
構造規模:木造2階建て
竣 工:2007年
撮 影:鳥村鋼一・峯田建*
第3回サスティナブル住宅賞 最優秀「国土交通大臣賞」











