POCO A POCO 東久留米の家
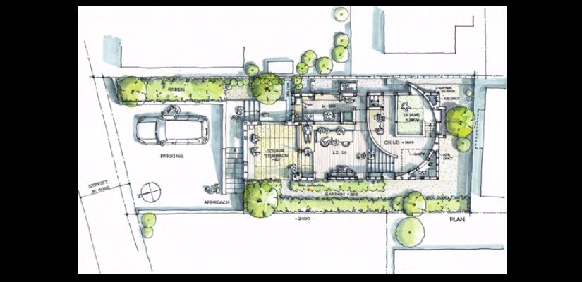
北側接道の北側斜面に建つ、家族4人+猫のための住宅である。
「遊具のような家に暮らしたい」との要望に、斜面地をなぞる段々畑のような1ルームの家を提案した。
少ない床面を維持するため、収納を天井から吊ったり上部利用したりし、それにより現れる凹凸の中に光や風が差し込む環境を創りだした。
住人は季節や必要に応じて居心地の良い場所を探し、居場所を点々としながら利用する。まさに猫のように暮らす家である。
南からの採光が期待できないため、エントランスポーチの壁を反射板として扱い、北面開口に明るさを導いている。
斜面をなぞる段々畑のような1ルームの家は、入口から段差を経る毎にプライバシーが高くなる空間構成になっている。
冬場に日射のダイレクトゲインが期待できないため、エネファームを熱源とする床暖房を導入し、外壁面の断熱を充実させワンルーム空間の熱を逃さないようにしている。
夏場は屋根付近に集まる熱の除去と通風を確保するため、屋内には上下に大きめの開口を設け重力換気を即すと共に、屋根面には通気層と屋根散水の仕組みを設け、
輻射熱が屋内に伝わらない様にしている。また、ポーチ下の雨水タンクの水は屋根撒水、植栽への水やり、融雪等に利用する。











